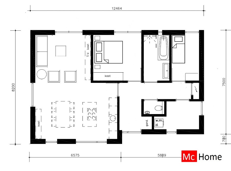
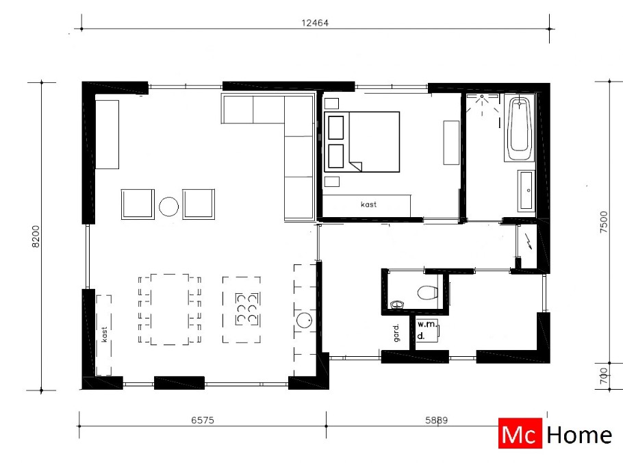
Ontwerp Bungalow B154




Onder ziet u een voorbeeldindelingen van bovenstaand ontwerp. Het kan geheel naar uw wens worden aangepast.


Kosten ontwerp B154
Wilt u meer weten over prijzen voor de staalframeconstructie, montage, casco, cascoplus of sleutelklare uitvoering?
Stuur een mail!