Ontwerp B152





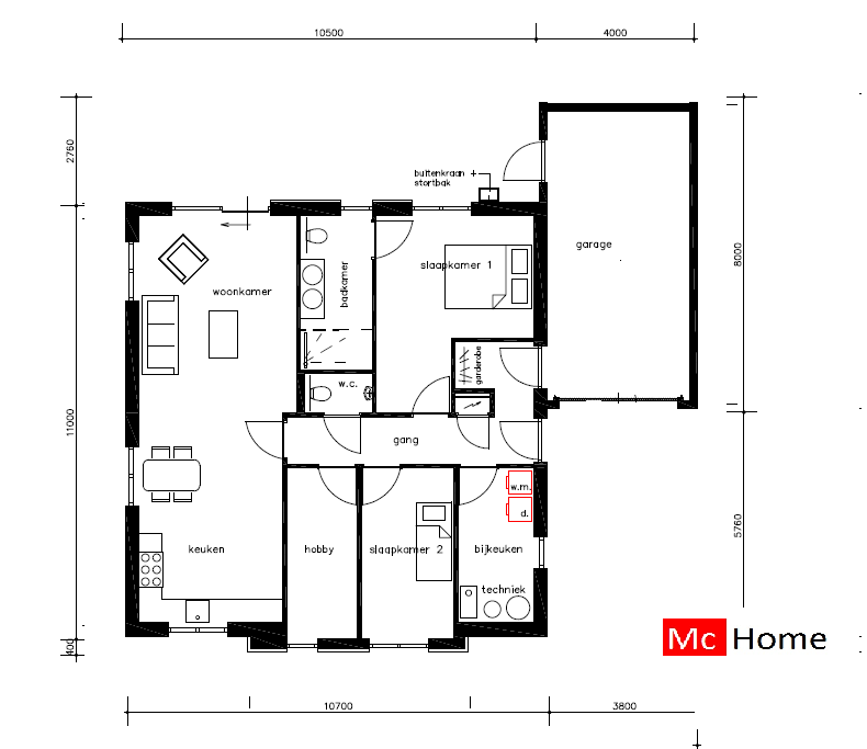
Onder ziet u een voorbeeld indeling van bovenstaand ontwerp. Het kan geheel naar uw wens worden aangepast.

Kosten ontwerp B152
Wilt u meer weten over prijzen voor de staalframeconstructie, montage, casco, cascoplus of sleutelklare uitvoering?
Stuur een mail!